人気の平屋◎リフォーム済◎閑静な住宅地ながらコンビニやスーパーも近くお買い物にも便利な立地です♪
最終更新日:2026年01月10日
6.5万円
3DK
東ヶ丘荘
一戸建て
八戸市湊高台3丁目17-5
画像と現況が異なる場合は現況優先となります。
| 種 別 | 一戸建て | 態 様 | 仲介 |
|---|---|---|---|
| 問合せ番号 | |||
| コメント | 人気の平屋◎リフォーム済◎閑静な住宅地ながらコンビニやスーパーも近くお買い物にも便利な立地です♪ | ||
| 物件名 | 東ヶ丘荘 | ||
| 所在地 | 八戸市湊高台3丁目17-5 | ||
| 交 通 | 八戸市営バス 東霊園バス停まで約400m | ||
| 月額賃料 | 6.5万円 | 坪単価 | |
|---|---|---|---|
| 敷 金 | 賃料×2 | 礼 金 | 無し |
| 共益費 | 無し | 仲介料 | 賃料+消費税 |
| 前家賃 | 賃料×1 | 管理費 | なし |
| 契 約 | 2年更新 | ||
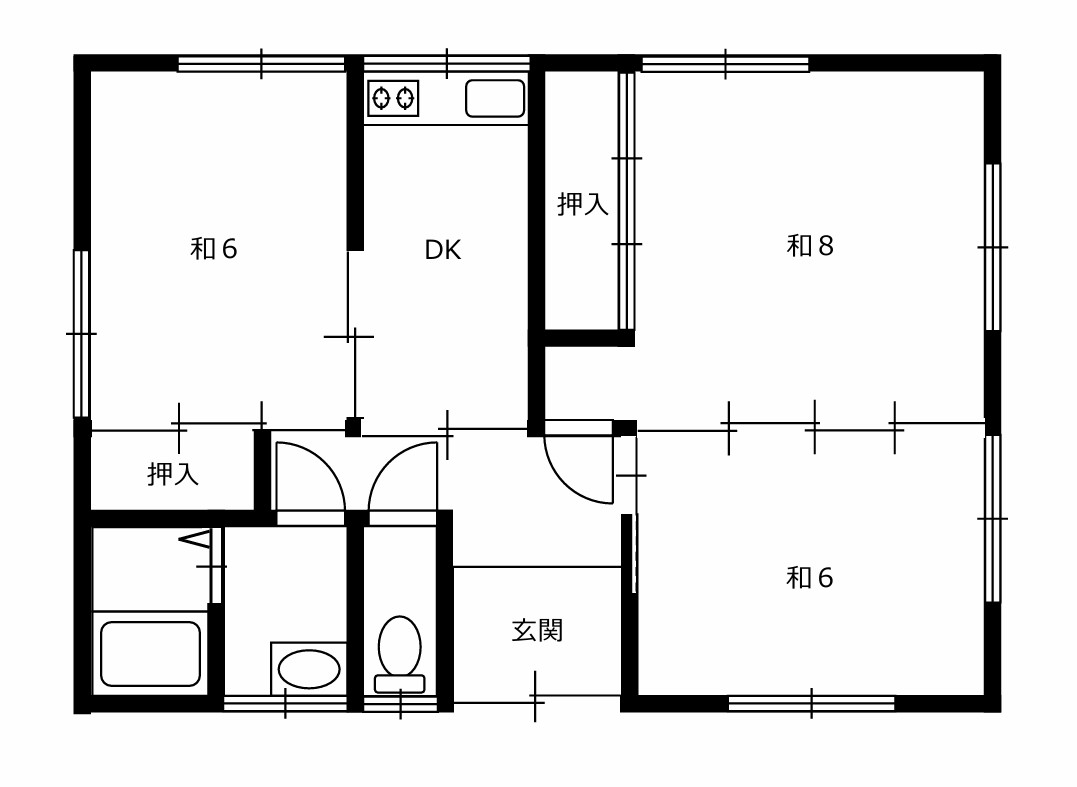
| 間取り | 3DK | 間取り詳細 | (和8、和6、洋6、DK) |
|---|---|---|---|
| 坪 数 | 占有面積 | 57.96㎡ | |
| 築年月日 | 1988年 | 構 造 | 木造平屋建 |
| 物件の階数 | 2号室 | ベランダ | |
| 入居可能日 | 即入居可 | 保 険 | 要加入 |
| 駐車場 | 2台 (3台目3,000円) | ペット | 不可 |
| バ ス | トイレ | 暖房洗浄便座 | |
| 学区(小) | 青潮小学校 | 学区(中) | 東中学校 |
| 設 備 | 洗面化粧台、洗濯機置場、暖房洗浄便座、ボイラー交換済み | ||
| 備 考 | 保証会社必須:初回総賃料の80% | ||

















